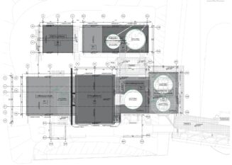
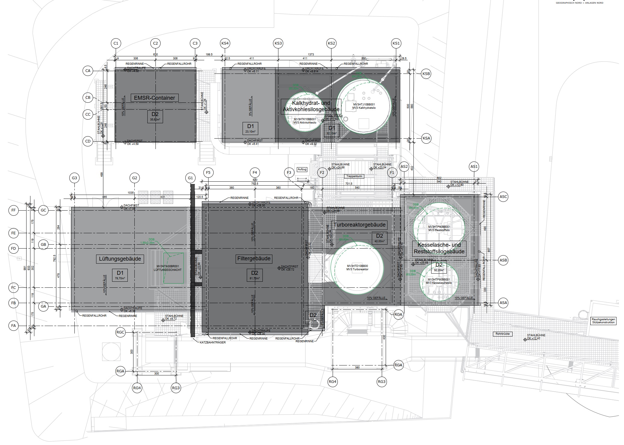
FLUE GAS DESULPHURISATION PLANT, SOLINGEN
Technische Betriebe Solingen (TBS) has commissioned ANDRITZ AG to retrofit a flue gas cleaning system at its waste-to-energy plant in Solingen. The retrofit includes ANDRITZ TurboSorp technology, which will significantly reduce emissions of pollutants such as sulfur oxides, hydrogen chloride, hydrogen fluoride, dioxins, furans, heavy metals, and mercury. This will ensure compliance with the strict German air quality regulations. The project is scheduled to be completed within one and a half years: The construction and commissioning phase will begin in November 2025 and end in March 2027.
On behalf of Andritz AG, convex ZT GmbH is responsible for the civil works execution design.
Owner:
Technische Betriebe Solingen (TBS)
General contractor:
Andritz AG
Commissioning:
March 2027
-
Photos:
TBS, convex ZT GmbH

